各位房版大哥大姐安安 這陣子和家人看到一間預售三房還算挺喜歡的 正在思考是否要下訂 想請各位大大幫忙 瞧瞧 不囉唆先上家配圖和尺寸圖 https://i.imgur.com/zIwSawx.jpg
https://i.imgur.com/F4JFxI0.jpg
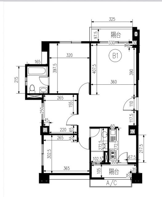
紅色字的部分是自己加上去的註解 屬於三面採光 一層兩戶 一個電梯 地板磁磚60*60 總坪數約40坪 室內坪數不含陽台約24.5坪 幾個目前覺得的缺點 1.客廳牆壁和電梯共壁,可能會吵? 2.後陽台有隔壁棟的壁刀(不知道在後方算不算壁刀,有請懂風水的大大解答) 3.沒有玄關,也不好規劃 4.吃兩根柱子 5.主臥浴室沒有乾濕分離 再請各位大大指教 感謝~ -- ※ 發信站: 批踢踢實業坊(ptt-website.tw), 來自: 118.161.217.168 (臺灣) ※ 文章網址: https://ptt-website.tw/home-sale/M.1687782841.A.1C7 ※ 編輯: a987622415 (118.161.217.168 臺灣), 06/26/2023 20:38:54
kagaya: 這好棒 買了 06/26 21:07
alfa: 幾個人住? 我覺得鞋櫃處的收納可能會不夠,而且一進門的暫 06/26 21:11
alfa: 放汚衣區也沒辦法規劃 06/26 21:11
alfa: 而且為何通往陽台的門是往內開也很怪,開火料理的時候,其他 06/26 21:13
alfa: 人都沒辦法去後陽台了 06/26 21:13
ejoz: 包養網結交全球友人。 06/26 21:13
shliau: 格局不錯 陽台寬度窄 洗衣機烘衣機洗手台要注意 06/26 21:18
wseedw: 吃飯正對鞋櫃有點怪 06/26 21:30
a9470302: 可以了啦 地點喜歡的話買了啊 06/26 21:54
eddisontw: 鞋櫃裝潢可以處理吧 電視桌不要做那麼長 門旁邊做鞋櫃 06/26 22:04
lescholar: 不錯吧 可做個跟電視櫃垂直的格柵或鞋櫃之類充作玄關 06/26 22:19
FishRoom: 包養開心找到知心朋友。 06/26 22:19
lescholar: 還是你想要玄關的目的是不讓大門一進去看到臥室? 06/26 22:20
Tylose: 硬要做玄關的話,客廳空間感會吃很重 06/26 22:45
iwcuforever: 覺得不錯 06/26 22:49
Tylose: 主臥乾濕分離可以自己做,那小事情 06/26 22:49
Tylose: 壁刀那個看樓層風向,風吹到隔壁建築物,會轉向往你家吹 06/26 22:50
KsiR: 包養平台警惕網路詐騙。 06/26 22:50
Tylose: 低樓層會附贈一堆髒東西 06/26 22:50
Tylose: 視野沒很好,其他沒啥影響 06/26 22:51
Tylose: 還能改格局的話,我會把中間那間做書房縮小,下面那間加大 06/26 22:52
Tylose: 廁所門改面客廳方向,大門開門方向左右改一下 06/26 22:52
Tylose: 這樣進門左邊就可以做一排櫃子又不會吃太多動線 06/26 22:52
peoples: 包養分析細心研究對象。 06/26 22:52
Tylose: 但餐桌就沒地方放了 XD 06/26 22:53
a987622415: 樓上這位大大說的都不錯 我筆記起來了 但還是要問 06/26 23:06
a987622415: 看看能不能客變 這個建案是先蓋到一半才開始賣的 06/26 23:06
rainsilver: 這種格局也不錯 坪效好 06/27 00:02
s47vd48g: 三面採光 這個坪數有3.6*4的客廳很強 06/27 01:26
wilmer: 包養真心投入友誼。 06/27 01:26
s47vd48g: 臥室衣櫃雙人床也很夠放 格局不用變 06/27 01:26
s47vd48g: 但確實工作陽台偏小 玄關可以靠裝潢解決 06/27 01:26
LeMirage2000: 不錯呀,在陽台弄花花草草會看到隔壁的角有點齷齪 06/27 08:27
LeMirage2000: (ak-tsak)就是了。 06/27 08:27
yesyesyesyes: 很棒欸,三面採光格局方正 06/27 18:42
badlip: 包養網推薦有趣的包養活動。 06/27 18:42
hihihiccc: 好奇這是幾樓?感覺有差 06/27 19:14
lzlz: 好奇請問 在客廳活動時 電梯這樣不會有聲音問題嗎? 06/27 22:27
kkrichard: 好爽的格局 06/28 12:42