作者mukey ()
標題[請益] 3房格局
時間2023-07-30 11:42:13
前輩大家好,
最近開始看房子,
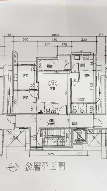
覺得這個格局不錯,
像以前四合院的概念,
右邊護龍主臥,
廚房是財庫在右上方,
比較裡面,現在很多開放式廚房或者廚房就在進門入口,好像跟以前的概念相反
會下廚,29坪有獨立廚房超心動
左右兩側開窗是11公分的天井,面對鄰居不開窗的牆壁。
優點是少了鄰居的聲音影響
但採光不佳
現在這麼熱有光就有熱,會不會反而省冷氣費?
通風應該怕如果樓下抽菸飄上來,鄉下小路可以考慮選低樓層?
開窗朝東,電視牆應該會反光,想右邊放電視,下沙發 ,上餐桌
剛開始看房,
好像比較少看到這樣的格局,
覺得很多缺點但不知道為什麼很心動,
麻煩各位前輩提供意見, 謝謝
https://i.imgur.com/ucTGKax.jpg
https://i.imgur.com/GihlkrE.jpg
另外請問看了29年老公寓從陽台進門,因為壁癌想說新屋防水應該會比較好吧,爬文說從陽台進門是夢幻格局,請問為什麼現在不做這種格局? 不好意思,剛開始做功課問題很亂,謝謝回答。
-----
Sent from JPTT on my iPhone
--
※ 發信站: 批踢踢實業坊(ptt-website.tw), 來自: 1.200.180.138 (臺灣)
※ 文章網址: https://ptt-website.tw/home-sale/M.1690688537.A.A38
推 una283: 主臥門對廚房口大門進門對洗衣機? 07/30 12:00
→ una283: 陽台進門可以剩下玄關的空間也有落塵的考量 07/30 12:01
推 huangshirae: 天井是115公分吧,11公分牆心到牆心,應該是一面牆 07/30 12:10
→ huangshirae: 喔 07/30 12:10
推 huangshirae: 另外29坪類單面採光,可以再想想 07/30 12:13
推 Merzario: 包養輕鬆找到有趣異性朋友。 07/30 12:13 推 icexice: 看電視時窗簾要關,不然電視上會有很礙眼的反光 07/30 12:34
→ jojoson: 天井沒什麼採光通風、客廳會看到後陽台晾曬衣物 07/30 13:04
→ mukey: 謝謝大家 我冷靜多了 繼續看 07/30 14:03
→ fitenessboyz: 有夠鳥的格局 換一間吧 07/30 14:16
推 cc4: 格局好不好很主觀跟個人的生活習慣有關 有心動代表有對到tone 07/30 14:30
推 Muzaffer: 包養平台遇見心動異性。 07/30 14:30 → cc4: 吧 07/30 14:30
→ kylecamine: 客廳格局很爛,廚房好小 07/30 15:53
推 MTBF: 坪數這麼大的房子連餐廳都沒有 這什麼垃圾 07/30 16:22
推 themlb09: 一層兩戶獨棟絕對能都設計陽台進出,但成本太高 07/30 18:04
推 abeliangroup: 不會在客廳吃飯吧 07/30 18:06
推 MIJice: 包養分析關注對方興趣。 07/30 18:06 推 bencmwu: 明室暗廳真的少見 07/31 12:32