作者MUSTZONE (尋找ing)
標題[賣/新竹/竹北] 椰林全新裝潢大四房+前後大露台
時間2023-08-15 17:04:05
本人同意並願意遵守現行法律、本站使用者條款、本站各級規定、本板所有規範,
本人願意為本文內容負責,並保証本文內容皆詳盡屬實,若違反相關規範,願受處分。
本文僅授權發表於PTT實業坊,未經同意不得轉載至其它網站,否則得視情況提出告訴。
建物門牌:新竹縣竹北市成功一街(影城成功商圈)
房屋屋齡:14年(已直接全面更新所有管線)
房屋類型:大樓
所在樓層:本案在2樓/共10樓
房屋坪數
建物權狀:80.77坪
主建物 :38.24坪(使用可達41.2坪)
附屬建物:8.73坪(前後露台約15坪)
共同使用:17.8坪
車位 :15.99坪
建物權狀是否包含車位坪數:Y
土地權狀:14.085坪
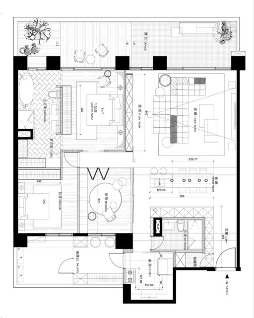
格局 :4房 2廳 2衛 2陽台
開價 :3960萬元
停車位 :坡道平面B2連號雙車位
交通 :光明六路東一段、自強南路
本物件附近地址實價登錄 :
https://i.imgur.com/GsPDC8H.jpg
本物件兩年內上一筆實價登錄: 無
照片連結:
前面大露台
https://i.imgur.com/kCa4NLC.jpg
客廳
https://i.imgur.com/0d80tM4.jpg
https://i.imgur.com/39t0f3K.jpg
平面格局圖
https://i.imgur.com/t7ZhZdj.jpg
設計渲染影片
https://youtu.be/Se3JIqNNN8U
其他照片可參閱
https://www.facebook.com/media/set/?set=a.10218679580860617&type=3&mibextid=nc
KXMA
PDF簡述介紹
https://drive.google.com/file/d/1tJ-IUAPVdUw5V39SVptplYA4cBJpab5H/view?usp=dri
vesdk
其他介紹:
優點:
1. 稀有竹北正核心,位置機能無敵(走路就到喜來登成功商圈、遠百、影城、商場超市、
運動中心、學校、公園等)
2. 熱門搶手明星學區(成功國中、興隆國小)
3. 稀有極低公設比(約27%),且前後大露台使用空間極大+前後採光+格局方正無空間浪費
(總使用空間達56坪)
4. 椰林建設搶手建商口碑好,且已全面升級全新廚房及兩間衛浴,並更新全屋水電瓦斯
管線及防水
5. 總戶數18戶,一層兩戶雙電梯,鄰居優質社區單純進出安全
6. 隨屋附贈得過設計界奧斯卡德國if大獎游濱崎大師的裝潢設計圖(Luova創研俬設計)
補充說明:
這間是當初小弟精挑細選好幾年原本裝潢好要自住的物件,但因家庭因素更換另一大樓故
售出。
目前大部分都已裝潢好並全面更新所有的瓦斯水電管線及防水,也升級了兩間衛浴及廚房
設備。
此物件個人非常推薦給有自住需求的朋友,地點鬧中取靜,附近生活機能跟學區都無敵,
使用空間高達56坪,竹北正核心實在很難找到如此大坪數採光好、又有前後大露台的稀有
物件,以寸土寸金的竹北來講 CP 值實在非常不錯 (補充:不用擔心低樓層管線問題,建
築師朋友確認過椰林管線轉折在地下室,要爆管會先爆公設的廁所)
另外 對面成功一街停車場大案也已動工,房仲說至少65~68起跳,而旁邊的MOMA早都已
經賣到五千萬了,因此這間至少保值性不錯。
歡迎有興趣的好朋友私訊賞屋喲
聯絡資訊:
Line: mustzone或臉書私訊
銷售來源:屋主本人
--
※ 發信站: 批踢踢實業坊(ptt-website.tw), 來自: 114.137.22.70 (臺灣)
※ 文章網址: https://ptt-website.tw/home-sale/M.1692090247.A.243
推 junior020486: 不錯,乾淨整潔 08/15 23:04
→ MUSTZONE: 感謝哥~~~希望這個有有緣人^^ 08/16 01:15