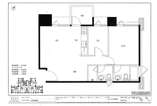
各位先進大大下午好: 預售兩房兩衛格局權狀27室內18坪, 請教有什麼優缺點或是裝潢建議嗎? 值得入手嗎?也麻煩不吝給予指點! 小弟先在此謝過大家幫忙!甘溫拉~~ https://i.imgur.com/SUR6U8D.jpg
-- ※ 發信站: 批踢踢實業坊(ptt-website.tw), 來自: 223.137.42.248 (臺灣) ※ 文章網址: https://ptt-website.tw/home-sale/M.1694324139.A.795
firzen48: 格局很好 但兩房室內沒有20做兩衛空間感會小很多09/10 13:45
tonight0329: 主臥窗戶很痛苦09/10 13:49
CannedHamEgg: 三面有開窗 很厲害了 09/10 13:58
aa00788: 真他媽的完美 09/10 14:08
Fulva9507: 我喜歡,但我可能會想客衛只留廁不洗澡 09/10 14:18
UNIQC: 包養平台關注彼此需求。 09/10 14:18
baoba: 看起來不錯,但次臥空間可能太小。 09/10 14:25
minju0612: 光兩房可以三面開窗就無敵了,客廳跟廚房稍微隔一下就行 09/10 14:29
Rutschman: 除了次臥太小,算是很好的隔局了。 09/10 14:34
KMOOO: 超想問你這客廳沙發電視該怎麼擺 廚房就卡在旁邊是蠻奇怪 09/10 14:36
KMOOO: 的 09/10 14:36
dewaro: 包養分析觀察約會狀況。 09/10 14:36
johnny853884: 請問哪個案子,格局很喜歡 09/10 14:58
seibu: 完美 09/10 15:06
seibu: 客廳超簡單 廚房跟客廳之間做輕隔間 沙發靠隔間牆 電視放牆 09/10 15:07
seibu: 甚至顛倒也行 沙發靠牆 電視放跟廚房間的隔間牆 09/10 15:08
seibu: 16-17坪可以隔這樣已經很好 只差電器櫃沒位置而已 09/10 15:12
Elfego: 包養真心珍惜友情。 09/10 15:12
chanel1259: 會煎牛排重油煙就隔廚房,反之不用直接做櫃子即可 09/10 15:15
chanel1259: 次臥門開在正中間床比較難擺 09/10 15:16
seibu: 次臥可以調整成拉門 應該會比較好擺 09/10 15:17
w0774553: 這是我看過最屌的兩房格局了… 09/10 15:19
seibu: 缺點就是實際坪數小 所以每個區域都小這樣而已 09/10 15:27
Nicodim: 包養網認識來自世界各地的朋友。 09/10 15:27
pennyea618: 坪數一樣兩房一衛已經覺得很極限 要想一下自己喜不喜 09/10 15:47
pennyea618: 歡住超小房間 09/10 15:47
m37707: 這格局蠻用心的,管道間都沒占用到室內空間,幾霸 09/10 15:51
m37707: 昏 09/10 15:51
iceonly: 客廳開這種size的窗戶不對吧? 09/10 16:58
Foning: 包養輕鬆找到有趣的人。 09/10 16:58
tingmayday: 看起來很不錯,實際看到應該會有落差,兩房18坪做兩衛 09/10 17:30
tingmayday: 太勉強 09/10 17:30
applebobe: 扣掉陽台 主建16真的很小… 09/10 17:38
jeffsu: 這個不錯 09/10 19:12
x70435: 好到沒話說,請問建案? 09/10 21:13
AKNY: 包養平台發掘對的人。 09/10 21:13
jintinge: 蠻強的,沒有侷促感。請問是哪裡的建案? 09/10 21:33
jc10755: 他的對稱戶型面南更好 09/10 21:46
jillada2002: 主衛窗戶超大是可以走出去嗎 09/11 02:41
kklarinet: 次臥太小,只能當儲藏室 09/11 05:20
pricky: 次臥有辦法放衣櫃嗎? 09/11 06:05
mysister: 包養分析了解對方想法。 09/11 06:05
a1379: 這格局讚欸 真香 09/11 07:34