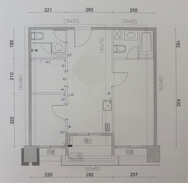
前輩們好, 小弟在第七波前搶了一間預售屋現在套牢, 目前準備客變階段想請教前輩們的建議, 預計不會自住,但交屋後可能出租幾年再出售, https://i.imgur.com/xmfe16q.jpeg
1. 反正不會自住,完全不客變 2. 只客變留全熱的管道 3. 客變,把左上的+1房打掉變成純川字兩房 4. 客變,把廚房移進去+1房變暗廳廚房但是客廳能變成明廳 或是如果有其他建議也謝謝前輩們 -- ※ 發信站: 批踢踢實業坊(ptt-website.tw), 來自: 1.164.1.36 (臺灣) ※ 文章網址: https://ptt-website.tw/home-sale/M.1731690477.A.D5D
instratos: 1,且2+1終究是比2房對一個空間,居住空間可以無下限11/16 01:13
instratos: 多*11/16 01:13
ZMTL: 你先確定廚房能動?11/16 01:19
ZMTL: 我覺得這戶的客變要考慮的是怎麼讓電視牆/沙發盡可能長11/16 01:19
iele: 水跟火在客變不是你想怎麼動就能怎麼動11/16 01:29
yes500: 現在包養網都這麼直接嗎11/16 01:29
iele: 廚房根本就不可能給你移到那小房間去11/16 01:33
javabird: 不自住最後要賣掉就別花錢裝潢了,不是還套牢中?11/16 01:36
fantasystar: 不自住就是111/16 01:47
jakert123: 2+1>211/16 01:52
jeffsu: 溫馨提醒水火區通常都不能動喔 非自住就是1完全不用想吧11/16 02:46
alexantiy: 歐美包養真的很平常嗎?11/16 02:46
mariondean: 推4樓 完全看不懂怎麽放電視和沙發11/16 02:54
Alderlake: 三個門都要動客廳和電器收納櫃才好用11/16 03:07
Morphee: 兩房平車地點好的話,花20冷氣電視家具弄弄出租就好。11/16 04:05
Morphee: 不過你這格局....11/16 04:10
dracula83183: 這格局什麼鬼啊?11/16 07:29
sowrey: 男友上包養網 該放生嗎11/16 07:29
heidilin: 很常見的川字格局,出租用格局不要動,之後比較好賣11/16 07:49
zero781218: 兩房建議留1.5衛就好了,主臥取消浴缸,增加收納空間11/16 07:53
jugularnotch: 改門的位置吧,這格局沒地方放沙發電視11/16 08:20
dakkk: 標準發哥11/16 08:28
dakkk: 坪效超大11/16 08:29
cw758: 是這個包養平台嗎11/16 08:29
dakkk: 左上打掉變客廳吧 不然客廳要放哪11/16 08:31
qpqp1: 這格局很適合在中間擺一張撞球桌 11/16 09:02
kimula01: 不要打掉吧 小房間可拿來當電動遊戲室11/16 09:36
iele: 再看一次,真的很爛的三房格局,是我一定不會買11/16 09:45
SSSShohei: 不用客變,要賣時你改兩房還會掉價11/16 10:13
ludi: 交男友跟包養有什麼差別11/16 10:13
leadergod1: 我會把+1房的門移位貼牆靠陽台側,不然沙發連2人的都 11/16 10:26
leadergod1: 擺不太下 11/16 10:26
wayne490: 不自住你幹嘛幫房客想客變啊,直接1zz 11/16 10:47
snowish: 這格局是三小...爛炸,雖然有解 =..= 11/16 14:13
snowish: 客變改得好不會掉房價,前提是改得好 11/16 14:14
peernut: 包養網到底在紅什麼? 11/16 14:14
amberfline: 1,其他都是多餘的 11/16 14:21
escape54321: 遲早會賣就冷氣家具擺一擺出租 不用花心思客變 11/16 18:14
rubberking: 這啥爛格局 11/17 00:31
jimmyzhan614: 小菜鳥? 水火不能動 我以為大家都知道 11/17 00:33
una283: 地點在哪決定了客群才決定格局裝潢 11/17 08:21
xikimi: 有人被包養 11/17 08:21